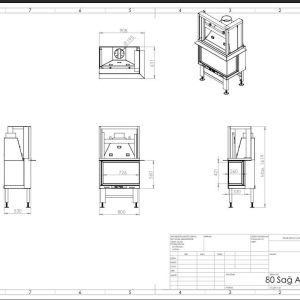
L Tipi Şömine